Iglesia de Nuestra Señora de la Luz (Bayamo)
| ||||||||||||||||||
Iglesia de Nuestra Señora de la Luz. Esta obra ubicada en el Centro Histórico de Bayamo, responde al propósito de satisfacer las demandas culturales de la población, y rescatar uno de los inmuebles coloniales que sobrevivió al incendio de la ciudad en 1869 por los patriotas cubanos. Se encuentra ubicado en un contexto, que aunque transformado, mantiene una cierta unidad, a partir de la existencia de algunos edificios pertenecientes a la Colonia y la República.
Ubicación
Sala Teatro José Joaquín Palma, Carlos Manuel de Céspedes entre Perucho Figueredo y Lora. en el municipio de Bayamo en la provincia de Granma.
De la Historia
El Edificio original del siglo XVII era una iglesia uninave precedida por una plaza, esta sufrió modificaciones con el tiempo, no obstante, su imagen externa se mantenía, con sus fachadas lisas, gruesos muros perimetrales, arcos pétreos de medio punto, techo de alfaraje y portadas neoclásicas en su fachada principal y lateral.
Su Arquitectura
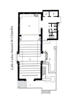
A partir de los restos de la edificación, el arquitecto Walter Betancourt proyecto la sala-teatro que debía dar solución a un programa que contaría con platea, escenario, hombros, camerinos, pantry, taquillas, zonas técnicas, áreas de ensayo, cabina de proyección y salón de reuniones.
Para mantener las partes antiguas de la edificación hubo que recurrir a soluciones complejas, que permitieron mantener los gruesos muros originales, el gran arco se convirtió en elemento separador entre el escenario y la platea y el sencillo techo de alfaraje se mantuvo. Los elementos incorporados al edificio antiguo armonizan con los existentes y enriquecen su imagen, como es el patio lateral, que sirve como área de extensión y proporciona un agradable sitio para los ensayos.
Su tratamiento a base de chinas pelonas, combinadas con piezas cerámicas y losetas hidráulicas, recrea en clave moderna los antiguos patios coloniales, este queda conectado con una galería y balcones, donde pies derechos y celosías ennoblecen, con la riqueza aportada por rico trabajo hecho en madera, la expresión de la vetusta edificación.
Este inmueble tiene tres fachadas visibles, apreciadas como un cuerpo continuo, donde los balcones corridos actúan como volúmenes de gran expresividad, al lograr la transparencia y planos de luz y sombra que enfatizan la horizontalidad, reforzada con el juego de figura fondo, trabajado a base de bandas horizontales interrumpidas por tramos ubicada en la parte baja de la edificación. Se alternan a su vez vanos de carpintería, paños calados y ciegos, de acuerdo a la función correspondiente.
Las antiguas fachadas, simples y lisas, han encontrado armonía y ritmo con los volúmenes incorporados, el uso de los elementos de madera, las cubiertas de tejas criollas, los enmarques de las puertas, a los que se les ha incorporado el ladrillo a vista, acentuando el contraste con las grandes superficies blancas, y las figuras geométricas simples que aparecen como elementos decorativos y puntos de énfasis que cualifican la obra.



